Consultări publice asupra proiectului blocului de locuințe din str. Lipcani, 7

Primăria Municipiului Chişinău
ID: 5738
eye 497
Описание
Persoane responsabile:
Ion Popa


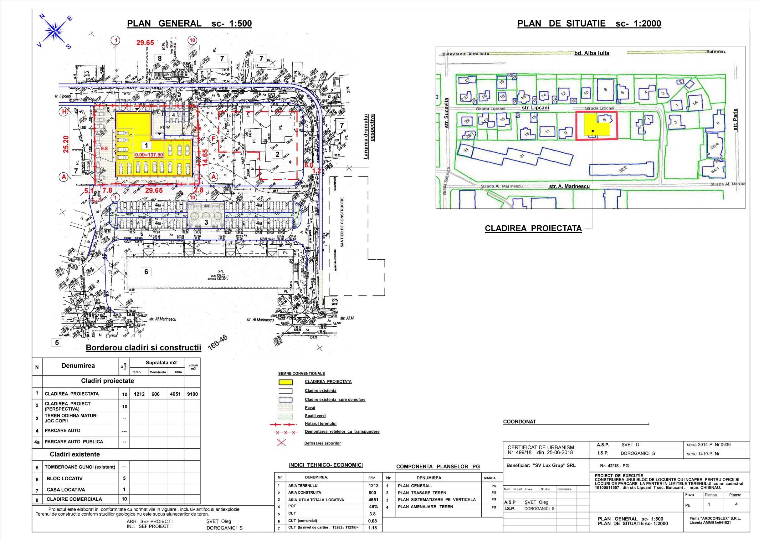
Pretura sectorului Buiucani informează despre organizarea consultărilor publice asupra proiectului blocului de locuințe cu încăperi pentru oficii și locuri de parcare la parter, pe terenul cu numărul cadastral 0100511557 din str. Lipcani, 7

Consultările publice vor avea loc pe data de 2 octombrie 2018, ora 10.00, în incinta Sălii de festivități a Preturii sectorului Buiucani (str. Mihai Viteazul, 2).

Beneficiarul: SRL "SV Lux Grup ";

Autorul proiectului: S.R.L. „ARDCONSLUX";

La dezbatere sunt aşteptate să participe toate persoanele interesate.

Recomandările asupra proiectului supus consultării publice pot fi expediate în adresa Preturii de sector: str. M. Viteazul, 2 și pe adresa electronică a Preturii –buiucani@pmc.md. Persoana de contact – Ion Popa, nr. telefon (022) 295036.
Recomandările și procesul-verbal al ședinței vor fi remise spre examinare Direcției generale arhitectură, urbanism şi relaţii funciare.

Participanţii la dezbatere care se înscriu la cuvânt îşi vor susţine punctele de vedere exclusiv pe marginea proiectului aflat pe ordinea de zi.

Durata limită de exprimare a punctelor de vedere este de 5 minute pentru fiecare participant.

Тип документа
Сфера
Ключевые слова

Consultări publice asupra proiectului blocului de locuințe din str. Lipcani, 7

13.09.2018 - 01.10.2018

stat

Файлы

Имя Тип документа #
pdf 152/ro_5737_lipcani-7.jpg proiect de act normativ
pdf 152/ro_5737_lipcani7.jpg proiect de act normativ